Добро пожаловать на http://vipplan.ru

Випплан Жигулевск - это тысячи проектов домов в нашем каталоге!

Вы всегда сможете найти для себя проект дома вашей мечты! Даже если этого не случилось, мы готовы в любую минуту предложить проект индивидуального дома.

Забыли пароль?
Вы еще не регистрировались?

Перейдите по ссылке ниже на страницу регистрации.

Регистрация...

Внимание!!!

В проектную документацию могут быть внесены изменения любой сложности, в соответствии в Вашими пожеланиями!

Полезные статьи

Установка систем вентиляции

Проектирование и установка систем вентиляции начинается на этапе создания проекта дома, в котором, наряду с газо- и электрификацией, водоснабжением и системой канализации, проектируется система вентиляции...

Приобретение земельного участка в собственность

Вы собираетесь приобрести участок. Прежде чем принять окончательное решение, тщательно изучите местность, на которой находится ваш участок, внимательно осмотрите местность. Узнайте о близости реки или других водоемах, всмотритесь в рельеф. Каждый из факторов может иметь неоспоримые плюсы, а также минусы, способные повлиять на окончательное решение. Стоит принять во внимание, что земельные участки, которые продаются «напрямую», дешевле тех, которые реализуют, пользуясь услугами посредников....

Проекты домов и коттеджей > Каталог проектов домов > Аккуратный дом с мансардой Vg1015

Аккуратный дом с мансардой Vg1015

Аккуратный дом с мансардой
Зарегистрируйтесь

Проект № Vg1015


Техническое описание
Общая площадь: 136 м2
Жилая площадь: 85 м2
Высота здания: 9 м
Размеры дома: 15м×10м
Кол-во комнат: 5
Цокольный этаж: нет
Гараж: нет
Мансарда: есть

Kонструкция
Фундамент: ленточный монолитный ж/б
Перекрытия: деревянные балки
Материал стен: Керамоблок

Архитектурный раздел
Конструктивный раздел
АР+КР - 52 000 (Со скидкой 20%)
Проект индивидуального однотажного жилого дома с мансардой с размерами здания 15,38 x 9,62 м. Наружная отделка здания – фасадная штукатурка. Фундамент – ленточный монолитный ж/б (под несущими стенами). Наружные стены – керамические блоки, фасадная штукатурка. Внутренние стены - керамические блоки. Перегородки – из кирпича на 1 этаже, на мансарде из ГКЛ на металлическом каркасе. Пол первого этажа - пол по грунту . Межэтажное перекрытие-деревянные балки с использованием теплошумоизоляционных материалов типа "URSA" в межбалочном пространстве. Крыша металлочерепица. Кровля – двускатая. Окна - металлопластиковые, выполненные по индивидуальному заказу.
Генплан застройки участка / Паспорт проекта 7000 руб / 10000 руб
Инженерный раздел (полный) 68000 руб
Смета на строительство 34000 руб
Теплотехнический расчет материалов стен Бесплатно
Стоимость проекта со незначительнми изменениями 61600 руб
Стоимость проекта со средними изменениями* 71800 руб
Стоимость проекта со значительными изменениями** 74500 руб

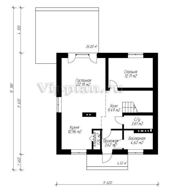
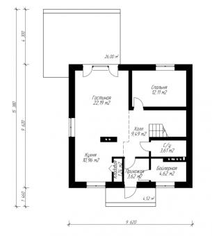
План первого этажа


Прихожая — 3,62 м2
Холл — 9,49 м2
Гостиная — 22,19 м2
Кухня — 10,96 м2
Спальня — 12,11 м2
Кладовая — 1,24 м2
С/у — 3,61 м2
Бойлерная — 4,62 м2

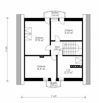
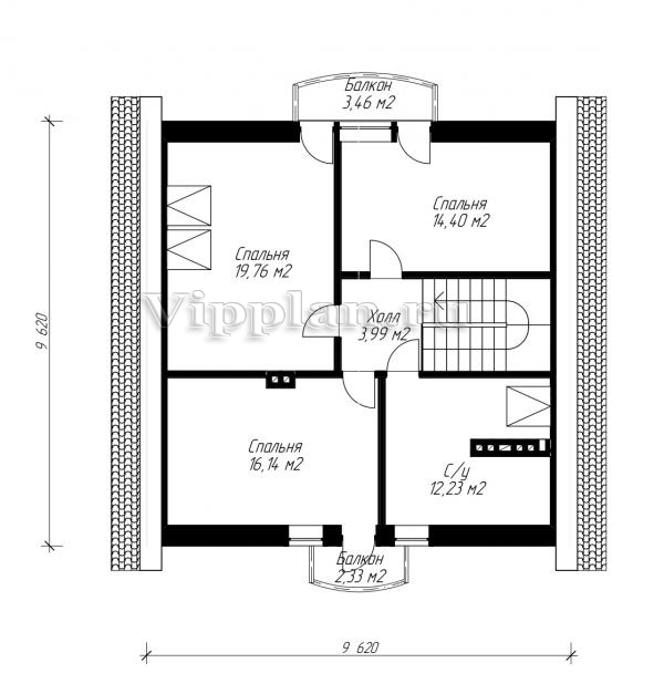
План мансардного этажа


Спальня — 19,76 м2
Спальня — 16,14 м2
Спальня — 14,4 м2
Холл — 3,99 м2
С/у — 12,23 м2
Балкон — 3,46 м2
Балкон — 2,33 м2
Аккуратный дом с мансардой Аккуратный дом с мансардой Аккуратный дом с мансардой Аккуратный дом с мансардой

Модификации проектов

Внесение изменений и привязка к участку строительства

В любой из проектов от компании VIPplan - Жигулевск по вашему желанию могут быть внесены изменения в материалы стен, материалы наружной отделки дома, а также будет произведена адаптация проекта под конкретный регион строительства (с учетом грунтов региона, геологических особенностей вашего участка и местных климатических условий) - БЕСПЛАТНО !!! (кроме проектов со скидкой и проектов наших партнеров).

Любой из проектов, размещенных на сайте jigulevsk.vipplan.ru мы можем выполнить из требуемых вам строительных материалов: ячеистый бетон (газобетон, пеноблок), керамоблок, кирпич, шлакоблок, бетонный блок, дерево (брус, клееный брус), каркасная технология (деревянный каркас, металлокаркас (ЛСТК)).

Фасад дома и его наружную отделку так же возможно выполнить с применением различных облицовочных материалов: структурной штукатурки, (с утеплителем и без), сайдингом (пластиковый или металлосайдинг), фиброплитами, кирпича.

 
6 Избранные
проекты

Доставка проектов по России: Москва (Московская область), Санкт-Петербург (Ленинградская область), Краснодар, Ростов-на-Дону, Ставрополь, Сочи, Волгоград, Новосибирск, Белгород, Брянск, Воронеж, Саратов, Хабаровск, Астрахань, Нальчик, Владикавказ, Екатеринбург, Тюмень, Самара, Нижний Новгород, Казань, Пермь, Уфа, Челябинск, Красноярск, Ханты-Мансийск, Иркутск, Курган, Оренбург, Омск, Томск, Барнаул, Новокузнецк, Кемерово, Абакан, Чита, Якутск, Южно-Сахалинск, Петропавловск-Камчатский и страны ближнего зарубежья: Белоруссия, Украина, Казахстан